Must-See Affordable New Builds in Sacramento
If you are actively searching for affordable new builds in Sacramento, CA, the Vineyard community just outside of Elk Grove is one of those hidden gems worth putting on your must-see list. This unincorporated pocket between Elk Grove and Rancho Cordova is getting a serious push of new construction, offering a range of floor plans, generous lot sizes, and quality schools — all while remaining within reach of regional amenities. If affordability, space, and modern design matter to you, these affordable new builds in Sacramento, CA deserve a closer look.
Table of Contents
- Overview: What makes these affordable new builds in Sacramento, CA appealing?
- Why consider unincorporated communities like the Vineyard?
- Community snapshot: The Vineyard at a glance
- Floor plans: Four plans across three model types
- Quick move-ins: what they are and why they can save you money
- Touring model homes: what you can expect on a walkthrough
- Financing, incentives, and negotiation tips
- FAQs About Affordable New Builds in Sacramento
- Final thoughts and next steps
Overview: What makes these affordable new builds in Sacramento, CA appealing?
The Vineyard sits just outside Elk Grove in Sacramento County, technically in an unincorporated area, which has two important implications. First, you are often buying into a newer master-planned environment where the developer is still adding parks, trails, and infrastructure. Second, some pricing dynamics can be friendlier early in a project, making these some of the more affordable new builds in Sacramento, CA.
Between two nearby communities in the development, builders plan to deliver roughly one thousand homes in the near term, with additional phases pushing the total even higher over time. For buyers priced out of the larger, more established cities — or buyers who simply want a larger lot and newer floor plans — this area offers value. The drive is scenic, especially in winter when you can glimpse snow-capped peaks from certain vantage points.
VIEW MORE HOMES FOR SALE IN SACRAMENTO, CA
Why consider unincorporated communities like the Vineyard?
- Often more competitive pricing compared with incorporated cities.
- Newer infrastructure and modern home designs.
- Flexibility in lot sizes, with options for larger backyards and pools.
- Opportunity for appreciation as the community builds out and amenities arrive.
If your search criteria include finding affordable new builds in Sacramento, CA that give you more space for the money, unincorporated areas are frequently a smart place to start. Developers are actively building, which creates inventory, incentives, and the chance to snag a quick move-in at a better price.
Community snapshot: The Vineyard at a glance
- Location: Between Elk Grove and Rancho Cordova, Sacramento County (unincorporated).
- Planned homes: Approximately 1,000 homes between the two nearby communities; developer phases may expand that total.
- Parks: Two future parks planned inside the master plan.
- HOA: No traditional HOA, but there are maintenance or amenity fees (referred to here as "Mello-Roos") ranging from about $370 to $400 per month.
- Tax rate: Approximately 1.05% property tax rate as quoted by builders at the time of recording.
- Average lot sizes: Around 5,225 square feet, with several lots between 5,000 and 7,000 square feet, and at least one large 10,000 square foot lot available on a single-story plan.
Floor plans: Four plans across three model types
Design options are a major reason buyers are gravitating towards these affordable new builds in Sacramento, CA. The builder offers four distinct plans across three model homes. Each plan prioritizes flexible use of space so you can tailor the home to your household. Below is a breakdown of each plan's core features and the ways buyers can configure bedrooms and living areas.
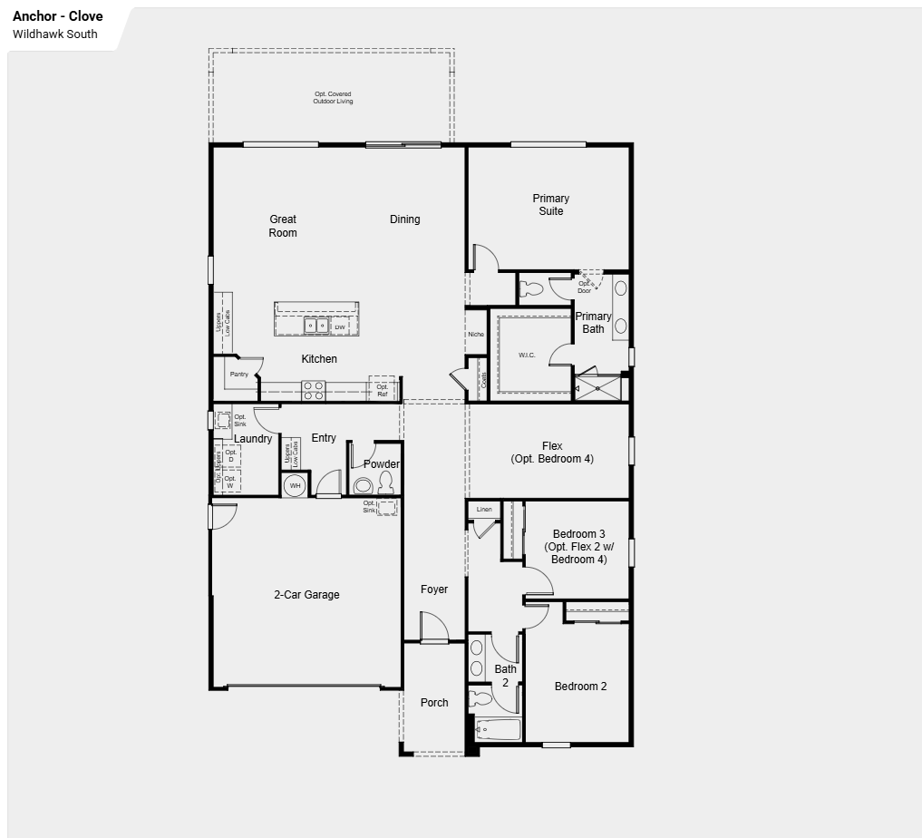
Clove - the single-story entertainer (2,262 sq ft)
The Clove is the single-story plan and a popular choice for buyers who prefer no stairs and a larger lot. Square footage for the Clove is approximately 2,262 square feet. It can be configured as a 3-bedroom with a flex/teen room or as a 4-bedroom where that flex space becomes a private bedroom with a door and closet.
- Single-story layout
- 2.5 bathrooms
- Two-car garage
- Option for a 10,000 square foot lot with the Clove in select sites
The Clove emphasizes open living. The kitchen island anchors a large great room and dining area, with sweeping sliding doors leading to a backyard perfect for entertaining and pools. The design lends itself to multi-generational living by allowing separation of sleeping areas and living spaces.

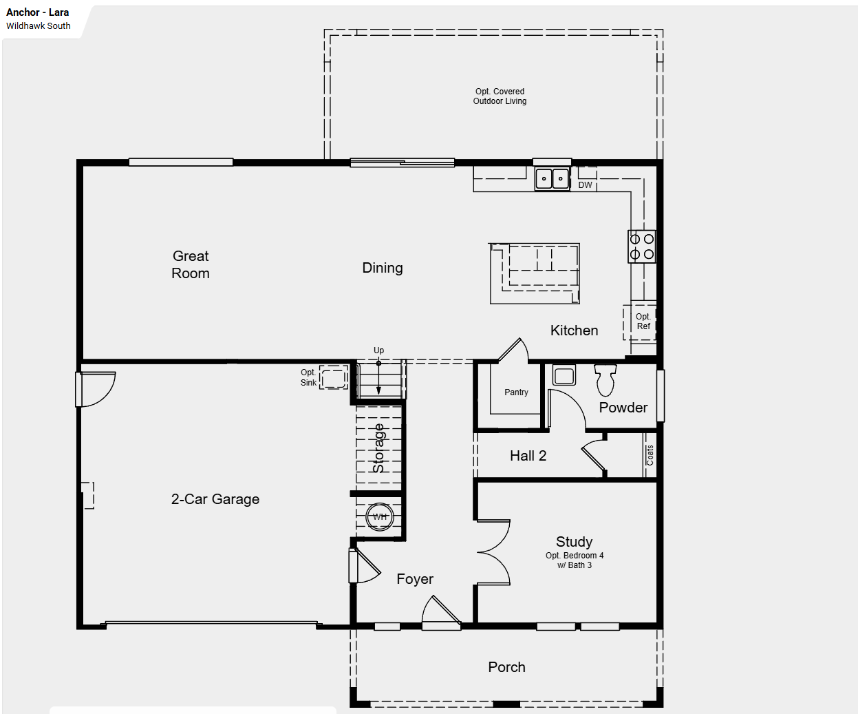
Lara - two stories, flexible bedroom count (2,555 sq ft)
The Lara is the mid-sized two-story plan at about 2,555 square feet. It offers options for 3 up to 5 bedrooms depending on whether you convert the loft and downstairs study into additional bedrooms.
- Two-story layout
- 2.5 to 3 bathrooms
- Two-car garage
- Upstairs master suite with loft and additional bedroom options
The Lara places the laundry and a loft upstairs near the bedrooms, which is convenient for families. The loft is a flexible space that can become a media room or fifth bedroom. The downstairs study provides a private office or a guest room option right off the main entry.

Maren - larger footprint with flexible baths (2,664 sq ft)
The Maren adds a bit more space with approximately 2,664 square feet and flexible 3- to 5-bedroom options, making it a solid middle choice between the mid-size Lara and the largest Zale. This two-story plan is aimed at buyers who want extra living area — larger bedrooms, expanded closets, and more flexible upstairs living — without committing to the largest footprint or highest price. Expect an open main level with a roomy kitchen island that connects to the dining and family areas, plus options to convert lofts or studies into additional bedrooms. Practical touches like upstairs laundry, abundant storage, and a two-car garage make the Maren especially family-friendly, while available upgrade packages let you tailor finishes and appliance selections to fit your lifestyle.
- Two-story design that separates public spaces on the main floor from private bedrooms upstairs for better noise control and flow
- 2.5 to 3 bathrooms, including the option for an additional en-suite on the ground floor if you need a true guest or in-law bedroom
- Two-car garage with room for storage or built-in shelving, plus potential for garage organization upgrades
- Designed for families who value upstairs living spaces with a sizable footprint — generous primary suite, versatile loft/study options, and flexible bedroom configurations for growing households
- Two-story design that separates common areas and bedrooms, improving privacy and daily flow
- 2.5 to 3 bathrooms with practical layouts and options for an added downstairs bath for guests or multi-generational living
- Two-car garage with space for bikes, tools, or a small workshop area and opportunities to add built-ins
- Designed for families who value upstairs living spaces with a sizable footprint and the flexibility to convert lofts and studies into extra bedrooms or home offices

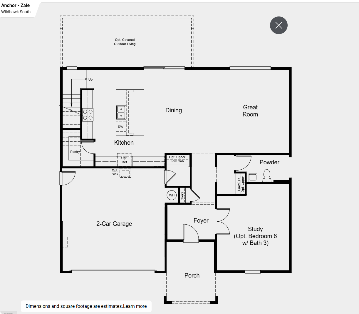
Zale - the largest option with up to six bedrooms (2,921 sq ft)
The Zale is the biggest of the models at around 2,921 square feet and can be configured as a 3 to 6 bedroom home depending on how you use the study, loft, and other flex areas. It has the most flexible bedroom and bathroom configurations, including an optional downstairs bedroom with bath.
- Two-story layout
- 2.5 to 3 bathrooms
- Two-car garage
- Study on the first floor that can convert to a bedroom with an attached bath
- Upstairs loft that can become an extra bedroom
Each model maintains the builder's signature open plan with large kitchen islands, generous cabinet space, and modern finishes. The Zale, with its larger dimensions, is an excellent option if you anticipate needing a home office, guest wing, or space for multi-generational living. This is one of those design-forward affordable new builds in Sacramento, CA where you can get both size and modern function.

DOWNLOAD YOUR FREE RELOCATION GUIDE
Quick move-ins: What they are and why they can save you money
One of the smartest ways to get into a new community without waiting months is to consider quick move-in homes. These are homes that are either complete or near completion and sometimes come with better incentives. If you want an affordable new build in Sacramento, CA and prefer a faster timeline, quick move-ins are worth considering.
Why builders discount or add incentives to move-in ready homes:
- Inventory pressure. Builders do not want a lot of finished homes sitting unsold.
- Carrying costs. Once a home is complete, the builder pays property taxes and ongoing utility costs, so they are motivated to move inventory.
- Expired incentives. Builders often offer bulk interest rates and other incentives that apply only to homes within a narrow timeframe to ensure buyers can lock rates and incentives before closing.
Quick move-ins can have apparent trade-offs. For example, you typically get fewer design choices because the builder has already selected finishes and upgrades. However, that is also why you can negotiate a lower price — sometimes significant discounting occurs when a home has been staged and sitting for a while. Buyers who value price and timing often win the best deals with quick move-ins.

Schools, amenities, and neighborhood details
One of the standout features of the Vineyard area is the local school performance. Schools serving the community have strong ratings, which is a major selling point for families prioritizing education.
- Arnold Elementary School: rated 9 out of 10 (K-6)
- Katherine Albiani Middle School: rated 8 out of 10 (7-8)
- Pleasant Grove High School: rated 9 out of 10
For many buyers, access to quality schools is as critical as price. Coupling highly rated schools with affordable new builds in Sacramento, CA makes the Vineyard especially attractive for families who want both value and strong local education.
Lot sizes and outdoor possibilities
Lot sizes are generous compared to more dense suburban neighborhoods. The collection of homes in this phase shows average lot sizes around 5,225 square feet, with many lots in the 5,000 to nearly 7,000 square foot range. Notably, one Clove single-story was listed on a 10,000 square foot lot — a rare find if you are looking to install a pool or host large outdoor gatherings.
Having a larger lot amplifies your home's resale value and lifestyle appeal. If you prioritize outdoor living, the ability to build larger patios, adding a pool, or simply having a wide lawn is a meaningful differentiator among affordable new builds in Sacramento, CA.
Price snapshot and market timing
At the time of reporting, quick move-in homes in the community ranged from the high 600s to the mid 700s in price. Price reductions of $20,000 to $25,000 were seen on some quick move-ins — a common strategy to bring attention to completed inventory. Keep in mind, market conditions change rapidly, but if you are looking for affordable new builds in Sacramento, CA, watching quick move-in inventory can reveal real opportunities.
Touring model homes: what you can expect on a walkthrough
Visiting models is the best way to understand how the plans feel in real life. Expect to see staged furniture, upgraded fixtures, and the builder's display finishes. Key areas to evaluate when touring models include:
- Traffic flow between the kitchen, dining, and exterior living areas.
- Natural light and window orientation for the main living spaces.
- Bedroom separation and noise considerations for families.
- Storage availability including pantry, garage cabinets, and closets.
- Options for future upgrades such as kitchen counters, flooring, or added rooms.
While builders are happy to show you models, keep in mind many require that a buyer is accompanied by their real estate agent on a first visit in order to preserve the buyer's right to representation at the time of contract. That representation can be crucial for negotiating price, upgrades, and incentives, especially on quick move-ins.
Financing, incentives, and negotiation tips
When you are shopping for affordable new builds in Sacramento, CA, there are several financing and negotiation levers to understand:
- Ask about builder bulk interest rates and whether those apply to the specific home and timeline you are considering.
- Push for price reductions or seller credits on quick move-ins, especially if the home includes high-dollar upgrades the builder may be willing to discount.
- Consider rate buy-downs or closing cost credits if you are flexible about exact move-in dates.
- Use a buyer agent experienced with new construction to ensure you do not waive protections or incentives inadvertently.
Negotiation strategies differ between move-in ready homes and homes-to-be-built. Homes that are months out typically afford you more time to pick finishes but less leverage on price. For quick move-ins, the opposite is often true. If your priority is affordability and timing, negotiate aggressively on quick move-ins.
FAQs About Affordable New Builds in Sacramento
How many homes are being built in the Vineyard community near Elk Grove?
Between the two nearby communities discussed, builders plan to build roughly one thousand homes in the near term, with additional phases expanding that total over time as the master plan develops.
Are there homeowners association fees for these affordable new builds in Sacramento, CA?
This community does not have a traditional HOA for the homes themselves, but there are Mello-Roos or similar community fees which in this phase range from roughly $370 to $400 per month.
What schools serve this community and how are they rated?
Local schools serving the area include Arnold Elementary School (rated 9/10), Katherine Albiani Middle School (rated 8/10), and Pleasant Grove High School (rated 9/10). These strong ratings make the area attractive for families.
What is a quick move-in and why consider one?
A quick move-in is a home that is finished or nearly finished and ready to close in 30 to 60 days. Builders often provide incentives on these homes because carrying completed inventory is costly. For buyers, quick move-ins can be a way to secure an affordable new build in Sacramento, CA at a lower price and with a quicker timeline.
Can I choose finishes on a quick move-in home?
Often you will have limited options for changes on a quick move-in, as finishes and upgrades may already be installed. However, because the upgrades are pre-selected, there is frequently room to negotiate price or credits if you do not want the existing choices.
What lot sizes are available and can I get a large backyard?
Average lot sizes in this collection run around 5,225 square feet, with many lots between 5,000 and 7,000 square feet. Some select homes, like the Clove on a 10,000 square foot lot, offer much larger yards suitable for pools and extensive outdoor living.
How should I tour these model homes to make the most informed decision?
Focus on how the floor plan fits your lifestyle, the flow between rooms, natural light, storage, and how easily the home will adapt to future needs. Bring a checklist, measurements for your current furniture, and consider visiting at different times of the day to assess light and traffic flow.
Are there parks and amenities in the Vineyard community?
Yes. The master plan includes at least two planned parks inside the community, and additional public amenities and trails will be added as the neighborhood builds out.
Final thoughts and next steps
The Vineyard near Elk Grove is a compelling example of how you can find affordable new builds in Sacramento, CA without compromising on space, schools, or design. With four flexible floor plans, generous lot options, and a mix of quick move-ins and build-to-order homes, this community offers multiple ways to get into a modern, family-friendly home at competitive prices.
Finding an affordable new build in Sacramento, CA is about timing, preparation, and knowing where to look. The Vineyard provides a balanced option for buyers who want newer homes with flexible layouts, quality schools, and room to grow. If these priorities line up with yours, this community should be high on your list of places to tour.
Ready to take the next step? whether you want to tour models, get a snapshot of quick move-in pricing, or compare lot options — planning your visits and working with us can make a big difference. These affordable new builds in Sacramento, CA are moving fast as the market shifts, so being prepared will help you lock in the best opportunity for your family. Reach out at 925-922-3901











